

the fireplace provides heating for the cabinimage © tonatiuh ambrosetti

living room and dining roomimage © personeni raffaele schärer architecteson the inside, the unsurpassed view is the only piece of decoration. an expansive window flanks the mountain-facing facade, directly linking the cabin to the alps. the rest of the home is left bare and neutral, the white walls and sanded concrete floor secondary to the framed scene.

cantilevered stairsimage © tonatiuh ambrosetti
solar panels provide a sufficient amount of electricity to the unit, which is heated through a fireplace in the living room.wooden shutters - cut from the existing logs - replace traditional window coverings, and enclose the unit during the occupant's absence.

wood shutters close over windows on the second floorimage © tonatiuh ambrosetti

storage on second floor
image © tonatiuh ambrosetti

the original wood beams sit on top of a new stone-clad foundationimage © tonatiuh ambrosetti

in contextimage © personeni raffaele schärer architectes

original structureimage © personeni raffaele schärer architectes

the beams were salvaged and reapplied in the exact same way on top of the new foundation image © personeni raffaele schärer architectes

new foundationimage © personeni raffaele schärer architectes

construction on the inside of the houseimage © personeni raffaele schärer architectes

rebuilding the roofimage © personeni raffaele schärer architectes

site planimage courtesy personeni raffaele schärer architectes

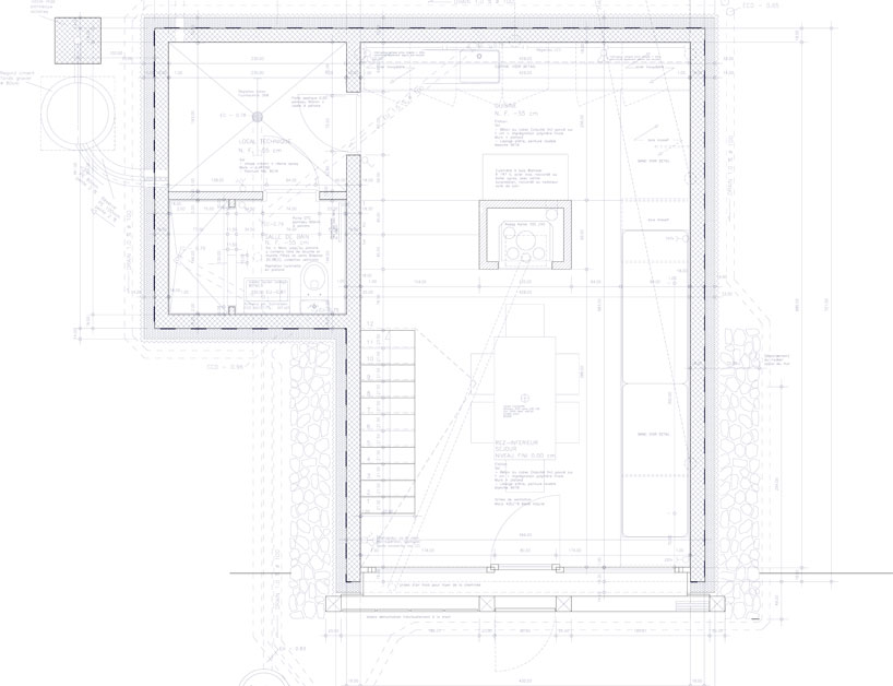
floor plan / level 0image courtesy personeni raffaele schärer architectes

floor plan / level 1image courtesy personeni raffaele schärer architectes

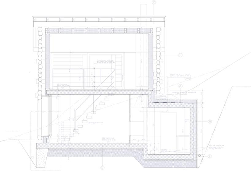
section
image courtesy personeni raffaele schärer architectes

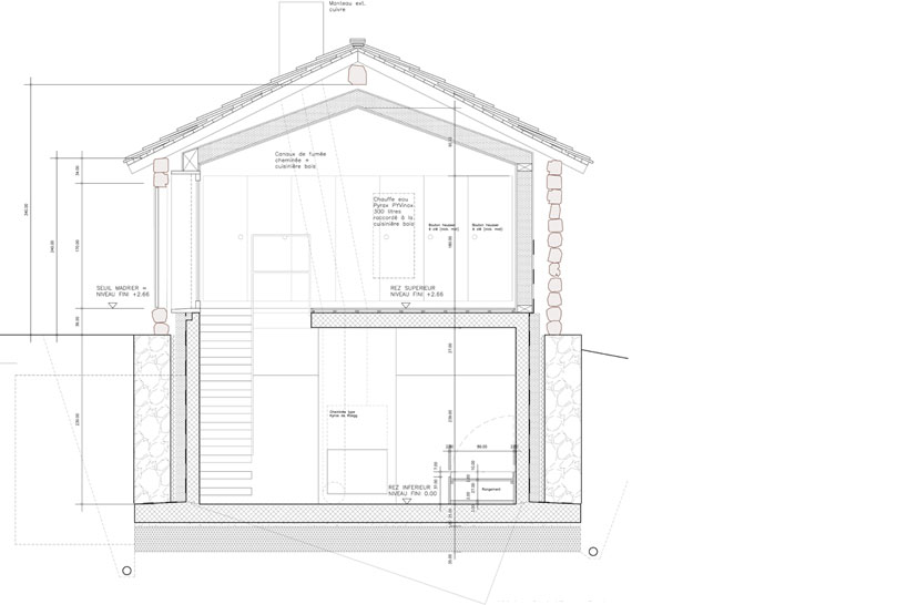
section
image courtesy personeni raffaele schärer architectes
Source:
Δεν υπάρχουν σχόλια:
Δημοσίευση σχολίου